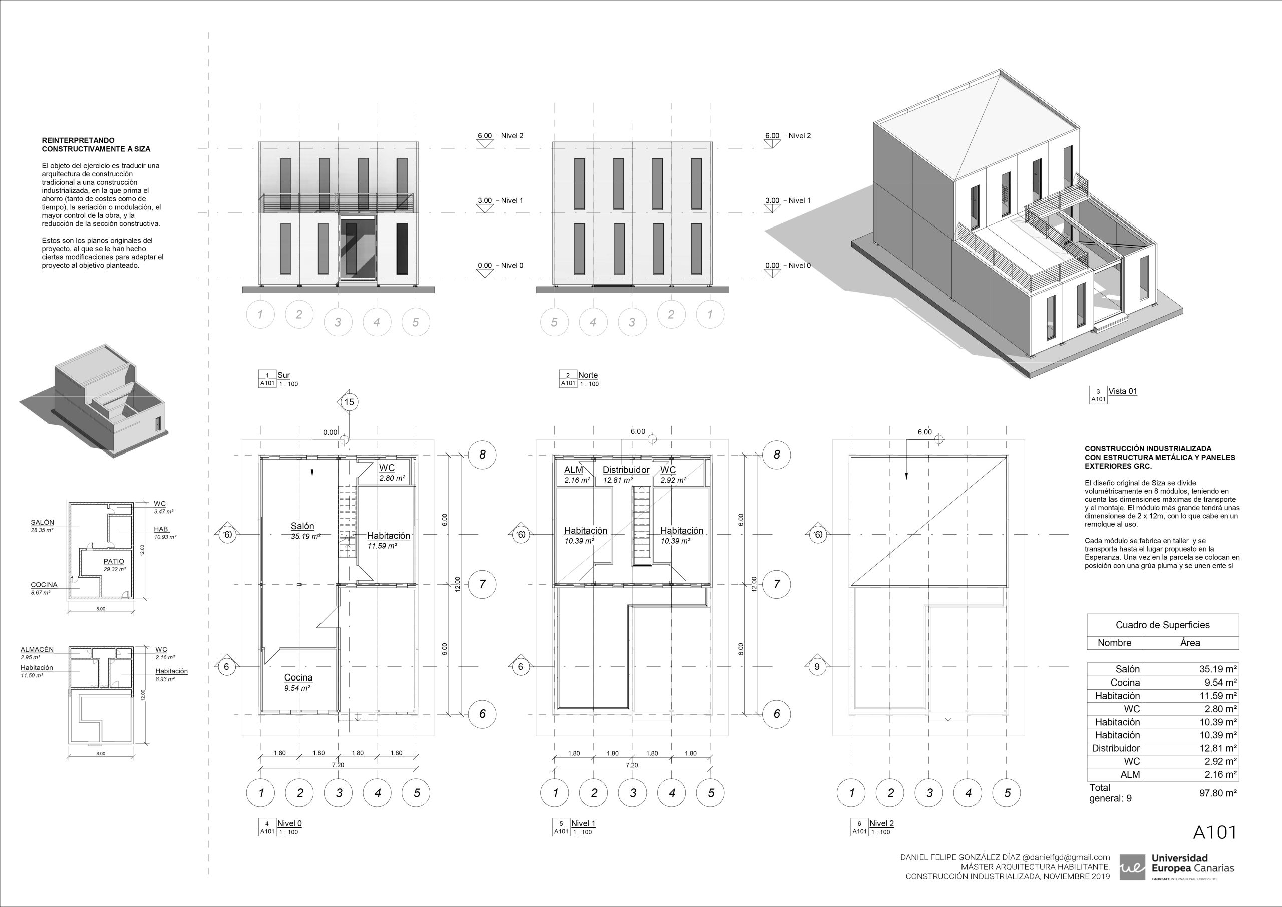
Construcción Industrializada

+ BIM. Reinterpretando

constructivamente a Siza

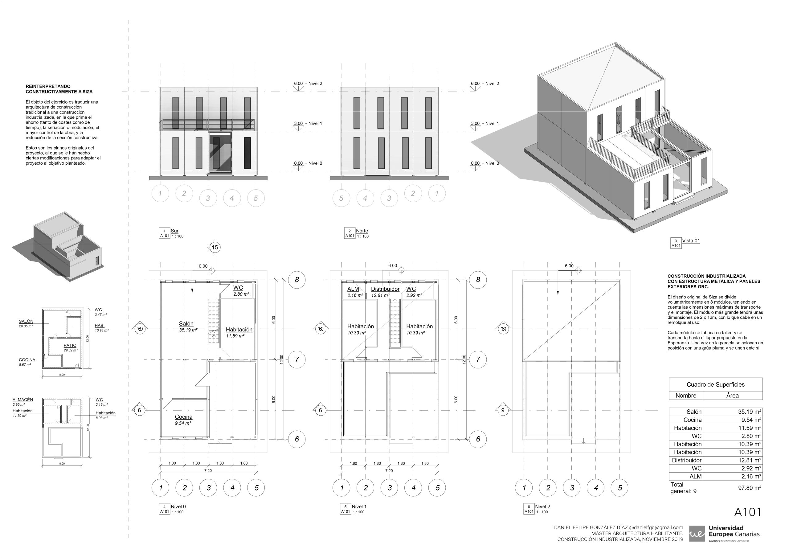
El objeto del ejercicio es traducir una arquitectura de construcción convencional en una arquitectura de construcción industrializada, en la que prima la eficiencia de medios, costes y tiempo, y obligatoriamente conlleva a una seriación o modulación. La construcción industrializada permite un mayor control de la calidad de la ejecución de la obra y tiene a una optimización de la sección constructiva.

Para el ejercicio se ha seleccionado una de las viviendas tipo propuestas por el arquitecto portugués Álvaro Siza para el distrito de Malagueira. Se trata de una vivienda de dos plantas con patio privado y terraza superior.

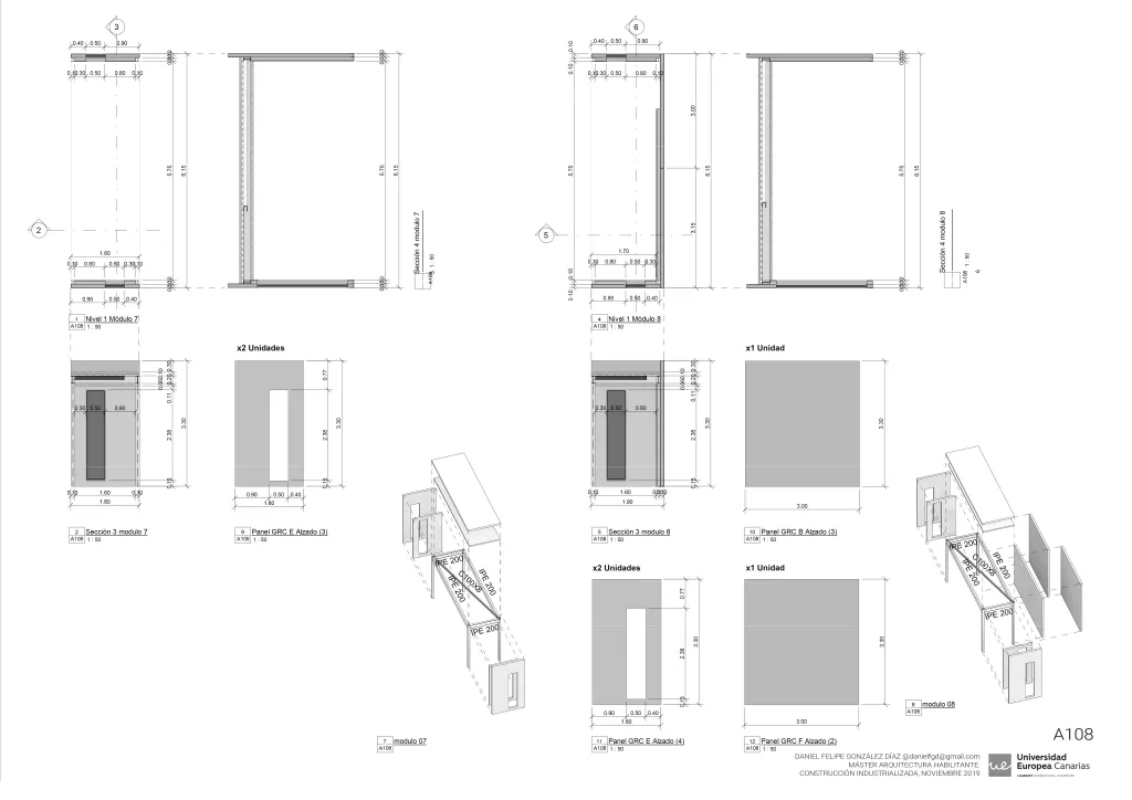
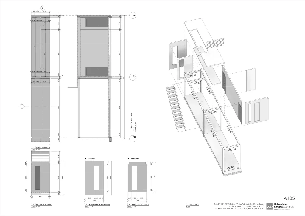
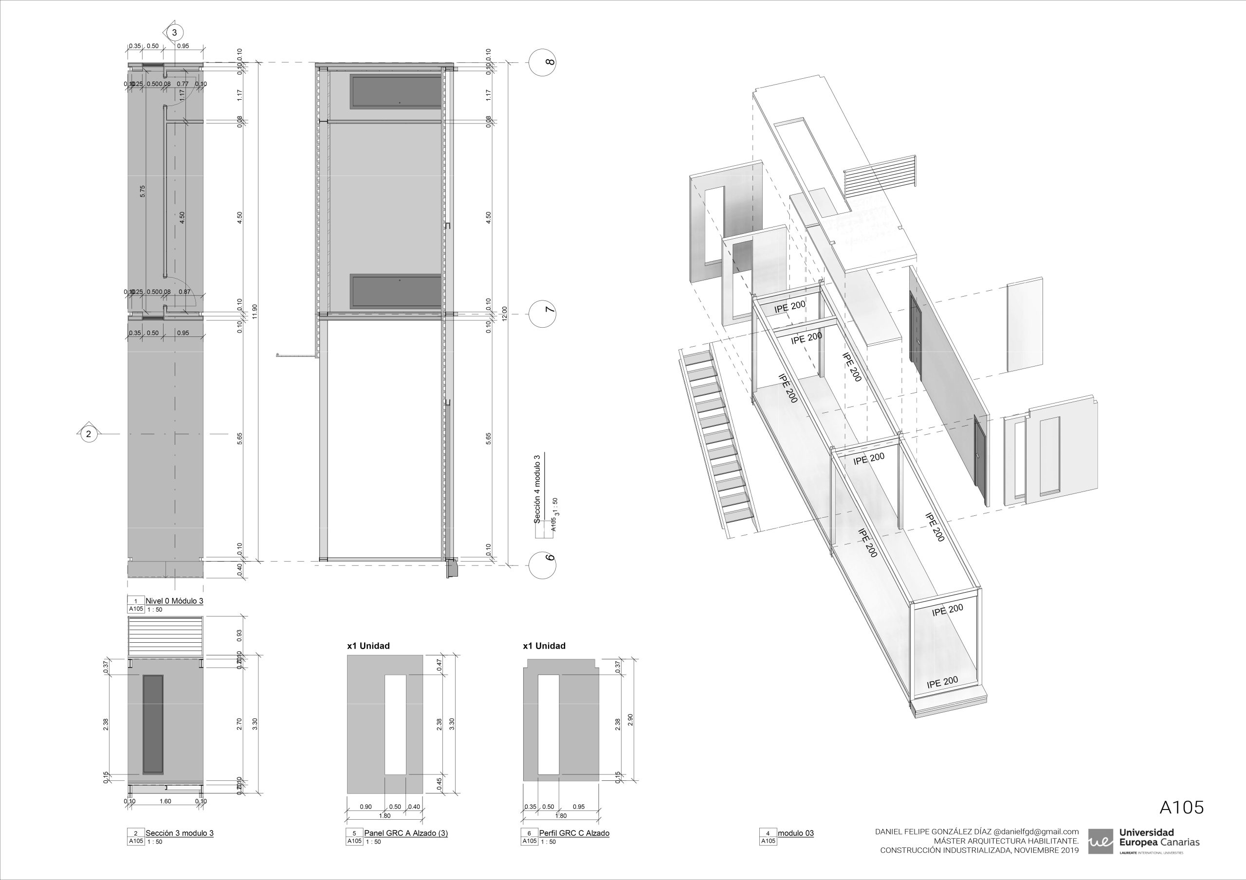
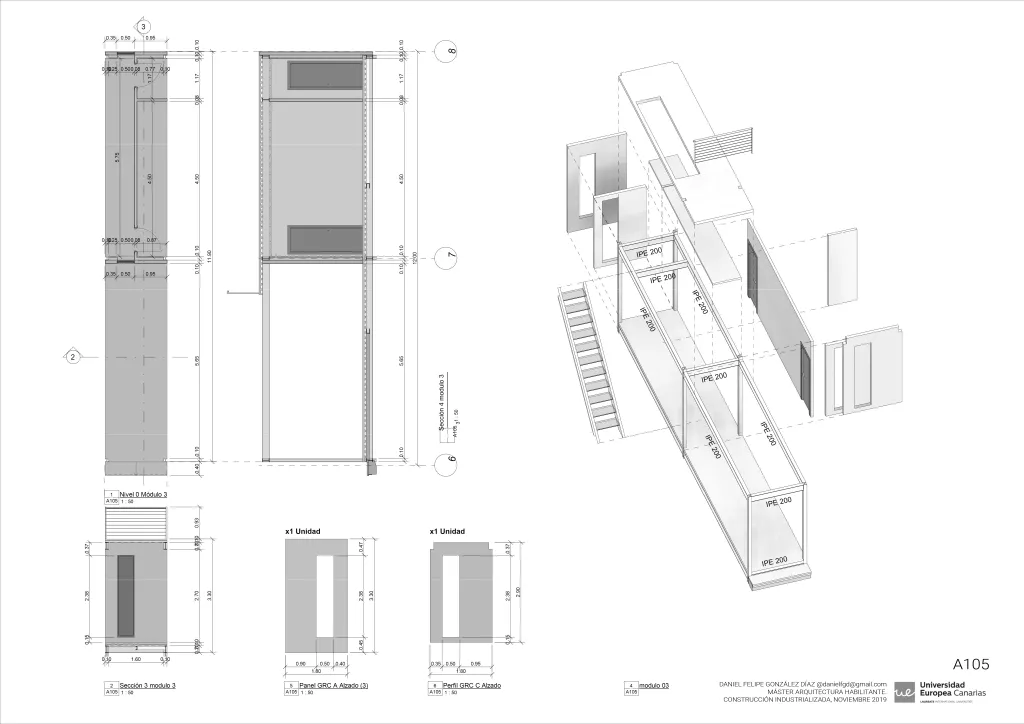
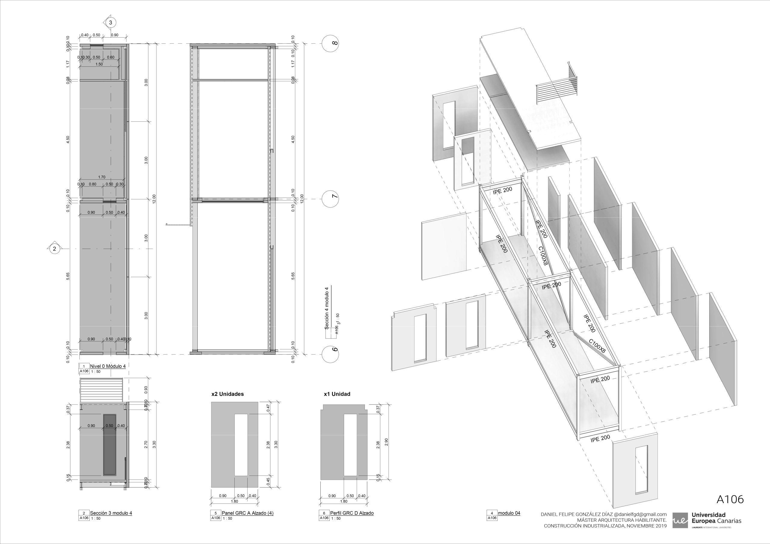
El diseño original se divide en 8 módulos, 4 por planta, teniendo en cuenta las dimensiones máximas para su transporte y montaje en el lugar del proyecto. el módulo más grande tendrá unas dimensiones de 2x12m.

Todo el proyecto ha sido desarrollado con REVIT y la metodología BIM, que ha servido tanto para la realización de los planos como para las memorias relativas al proyecto, incluyendo mediciones y presupuesto.