El enunciado del ejercicio es sencillo: estudiar y realizar una propuesta de densificación urbana, con el objetivo de combatir la inflación de precios del mercado inmobiliario, sobretodo en el ámbito de los alquileres, que han provocado la gentrificación de la ciudad (esto es movimiento de personas desde el centro a la periferia).
El proyecto parte del estudio de las diferentes escalas que existen en la ciudad de Londres.
Primero la escala del Gran Londres, en la que podemos ver un gran elemento dominante que es el río Támesis y la división en distritos de la ciudad. Luego la escala de la ciudad definida por sus singularidades, donde elementos como la Tate Modern o los rascacielos toman importancia, así como las infraestructuras de transporte. En un acercamiento mayor a la zona de la intervención, a una escala de barrio, vemos que las vías de tren elevadas definen la condición de este barrio, como se puede apreciar en el uso que se hace de esos bajos de las vías (Mercado de Borough) y que se han convertido en focos de actividad, y es aquí donde encontramos la primera oportunidad de proyecto, en los intersticios/situaciones no resueltas entre la escala de ciudad y la pequeña escala de la calle.
El proyecto, dada su naturaleza, va a dominar la escala de la ciudad, debido a la altura de la torre o las torres, y se va a convertir en la solución entre la escala que definen las vías de tren, y la pequeña escala de la calle, en un intento por dominar esta situación fallida.
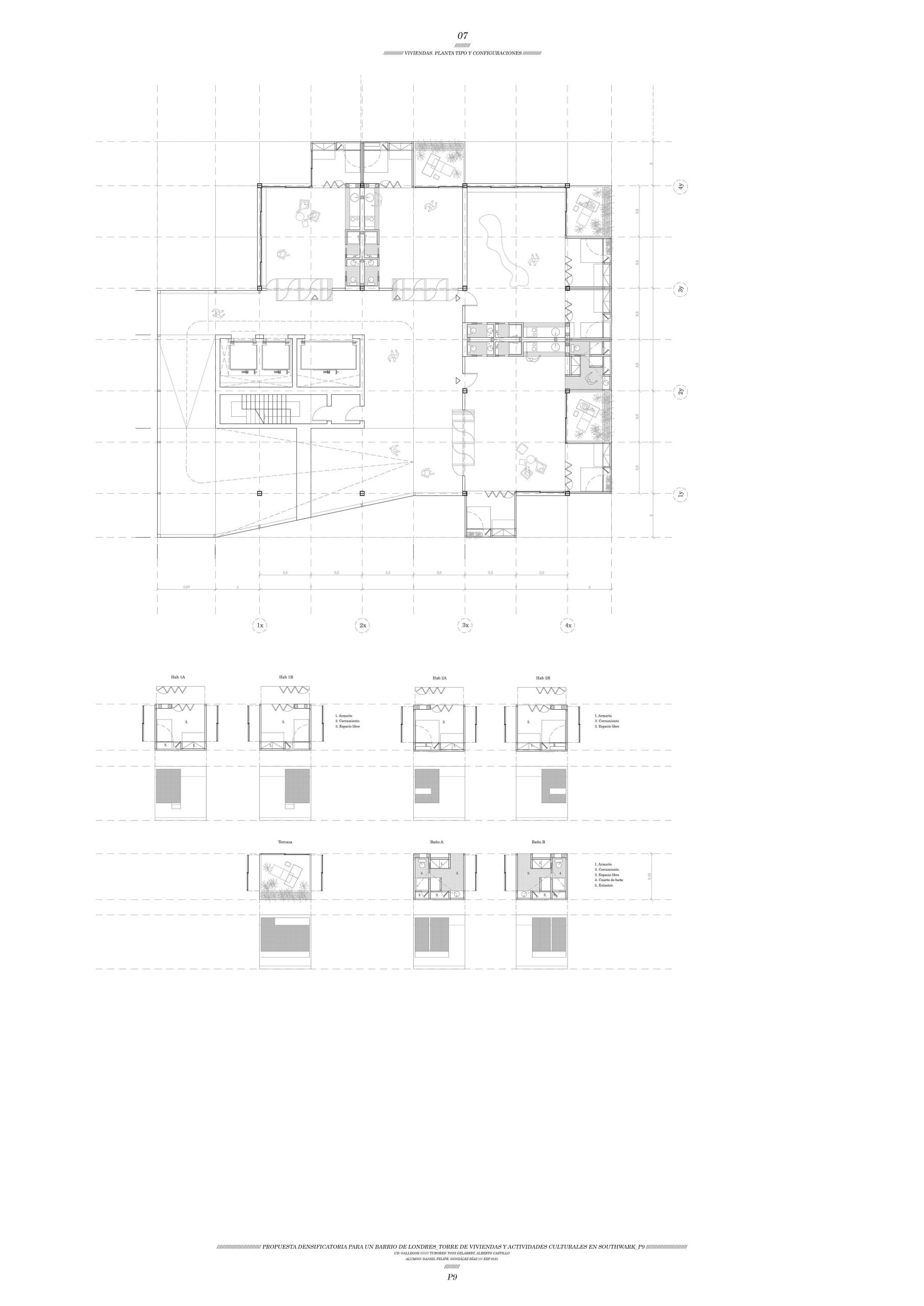
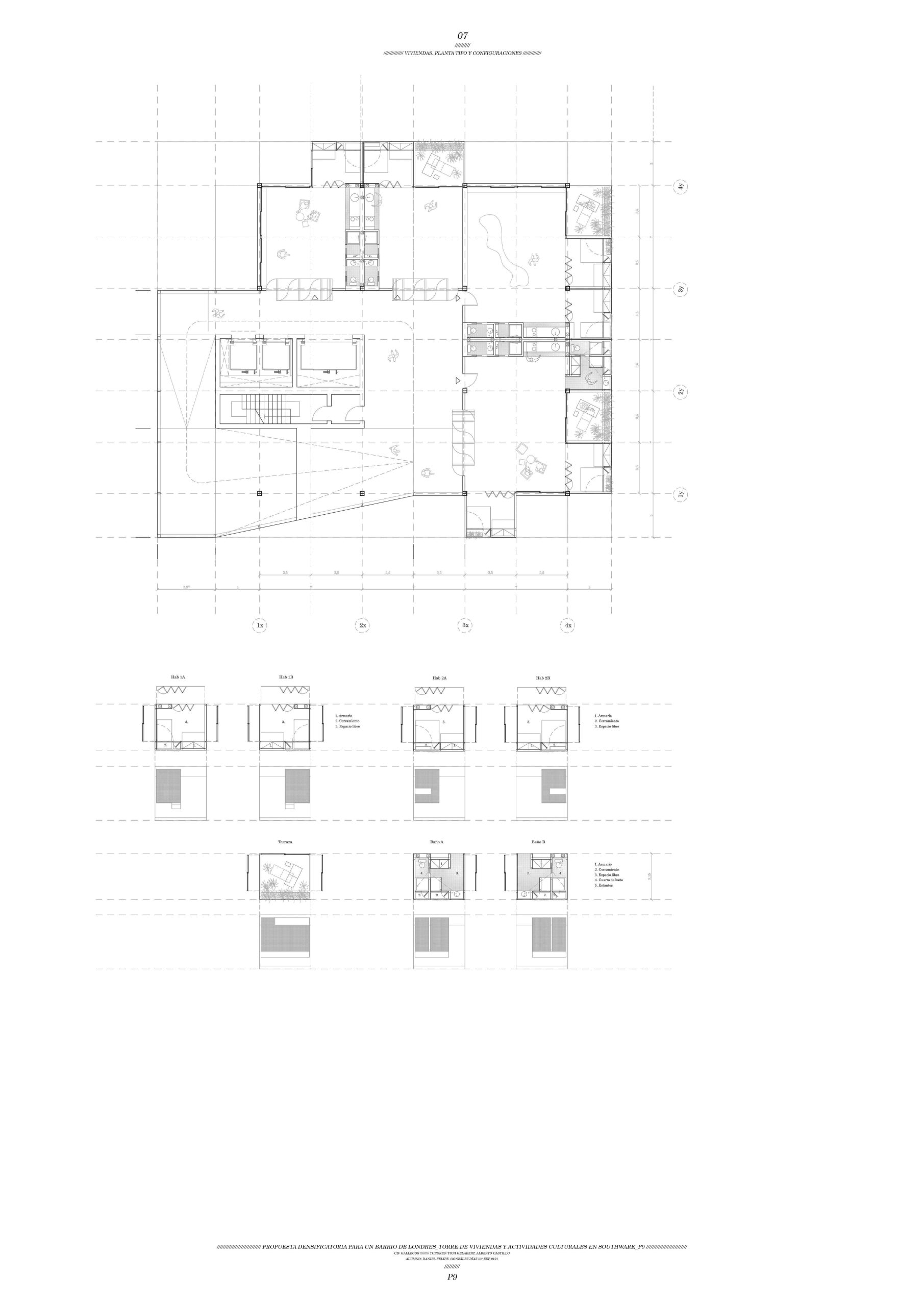
Los elementos que van a definir el proyecto intentan replicar la situación de estas calles, así como resultar una estrategia de densificación del barrio. Y esos elementos son los siguientes:
1. El yard. Patio a la inglesa pero convertido en espacio público. + Arte
2. La comunicación vertical. Hilo conductor de lo público en vertical. Algo que se da por hecho. Importante pero obvio.
3. Locales y restauración.
4. Viviendas en la parte alta.
5. El parque / lo verde / Green / Respiración / esparcimiento. Por carencia de esta en la zona.
Siguiendo el plano de Eric Fisher sobre atracciones e intensidades en el espacio público del centro de Londres, y ubicándonos sobretodo en nuestra zona de actuación, podemos elegir una calle que pertenezca al rango azul, que representa la intensidad de la gente local.
Ya que la ciudad parece haberse olvidado de estos pequeños rincones de desperdicios, debemos darle la relevancia que merecen, reivindicándolos para nosotros como espacio de confrontación de ideas, creación artística, reivindicación social y contraposición a lo contemporáneo. De esta manera creamos un laboratorio social, donde se darán encuentro personajes de la pintura, literatura, teatro, escultura, cine, música… del mundo de la cultura en general, un mundo de cultura quizás subversiva y un poco más “underground”.
De esta manera se pretende crear una nueva ruina urbana, aunque con los servicios suficientes como para acomodar a todas estas personas, y una infraestructura que permita el desarrollo intelectual de las diferentes actividades, conciertos, actuaciones, festejos, representaciones, emisiones, radiofonías…
Plantear esta ruina supone una reivindicación sobre la especulación urbanística y la prevaricación. Si no fuera un elemento vertical de tanta altura, no se propondría.
Para brindar las mejores experiencias, utilizamos tecnologías como cookies para almacenar y/o acceder a información del dispositivo. Dar su consentimiento a estas tecnologías nos permitirá procesar datos como el comportamiento de navegación o identificaciones únicas en este sitio. No dar o retirar el consentimiento puede afectar negativamente a determinadas características y funciones.
WhatsApp us