Restitución de fachadas completas y parciales con técnicas de fotografía digital y programas de escaneado 3D. Se exponen varios proyectos donde se ha utilizado la fotogrametría como herramienta para hacer un levantamiento lo más preciso y real posible de las fachadas objetivo.
Se trata de un recurso muy valioso a la hora de trabajar sobre inmuebles catalogados, rehabilitaciones integrales y cualquier reforma que precise de un levantamiento minucioso.
El primer ejercicio realizado con estas técnicas fue el levantamiento de la Basílica de San Miguel de Madrid. Una Iglesia de estilo Barroco situada en el Madrid de los Austrias, un ejemplo único en España por su planta y su fachada curva. Esto supuso un doble esfuerzo, ya que las medidas recogidas frontalmente había que trasladarlas a su punto en profundidad con ayuda de la planta. Un trabajo realizado con Carlos Beizaga Cappelletti.
Otros ejercicios realizados en la UEC fueron el levantamiento de la portada de la Academia de Bellas Artes en Santa Cruz de Tenerife y el levantamiento parcial de la fachada principal del Museo de Bellas Artes también ubicado en la capital Tinerfeña.
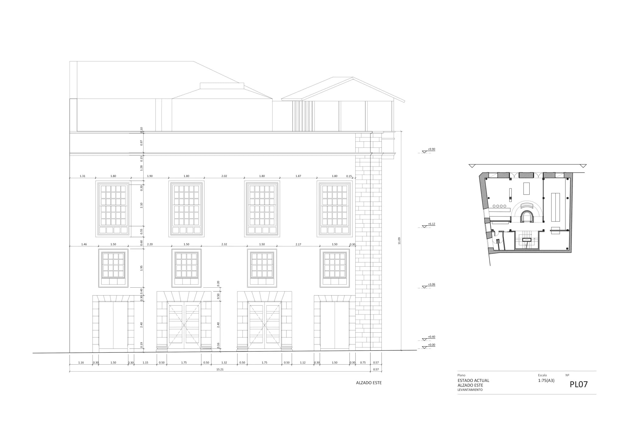
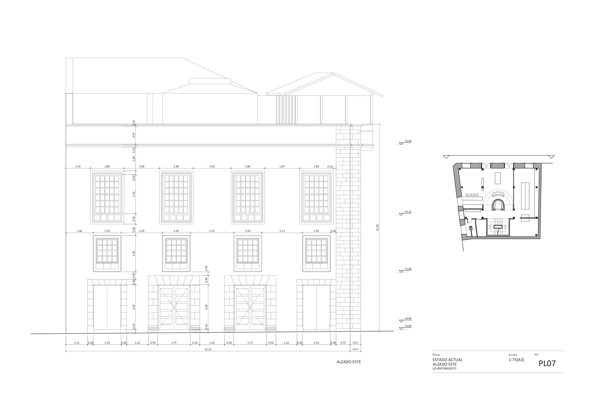
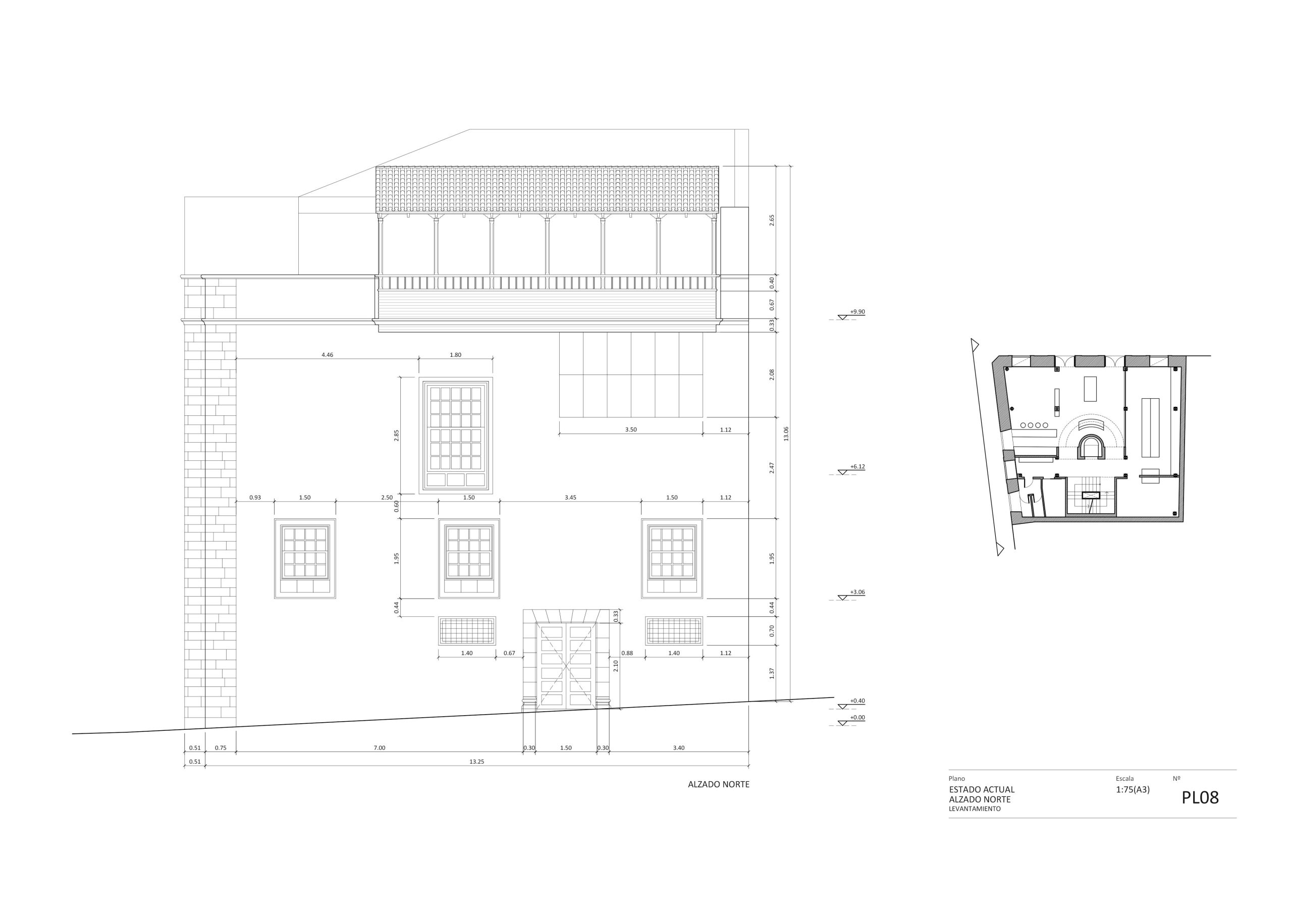
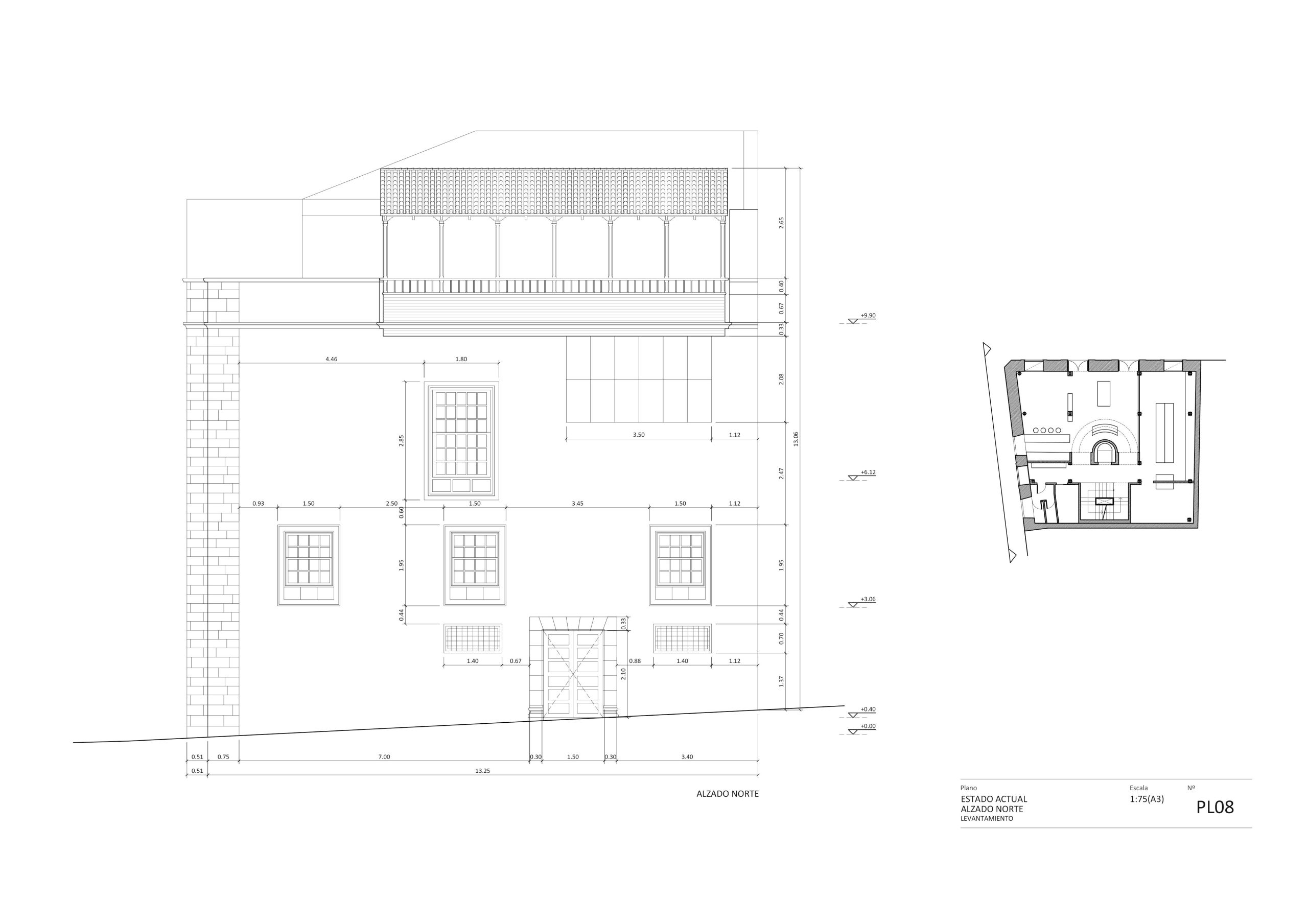
En el ejercicio profesional se trabajó sobre la fachada de un edificio del Casco Histórico de Santa Cruz de Tenerife, declarado bien catalogado y protegido, del cual se trabajó con herramientas fotogramétricas tanto para el levantamiento de las dos fachadas como para el dibujo de las carpinterías de madera de estilo eminentemente canario. Unos ventanales de madera y practicables a modo de guillotina, con panelado interior y banco.
Para brindar las mejores experiencias, utilizamos tecnologías como cookies para almacenar y/o acceder a información del dispositivo. Dar su consentimiento a estas tecnologías nos permitirá procesar datos como el comportamiento de navegación o identificaciones únicas en este sitio. No dar o retirar el consentimiento puede afectar negativamente a determinadas características y funciones.
WhatsApp us